
LOGÍSTICA E TERRAPLENAGEM
Projeto de terraplenagem : técnica que gera economia e eficiência
Um projeto de terraplenagem bem planejado evita custos desnecessários.
A combinação equilibrada entre níveis de terreno e muros de contenção, pode reduzir significativamente o investimento, além de otimizar a execução da obra.
Mais que nivelar o solo, é essencial projetar de forma estratégica para aproveitar ao máximo a área disponível, garantindo funcionalidade e eficiência às futuras instalações.
Indústria Farmacêutica – Projeto Green Field
Projeto de arquitetura concluído, e a partir de análise crítica técnica, sugerimos alterações nos níveis de terraplenagem, muros de contenção e arquitetura de implantação, resultando em economia de R$ 2.400.000,00 ( ano 2015 ), correspondente a 28% dos custos inicialmente previstos para esta atividade.
Dados do projeto:
- Terreno: 48.234 m²
- Área construída: 15.788 m²
- Produção: 6.819 m² (Sala Limpa)
- Laboratórios (LAB): 984 m² (Sala Limpa)
- Armazém: 4.298 m²
- Utilidades: 970 m²
- Administração: 2.093 m²
- Outros: 624 m²
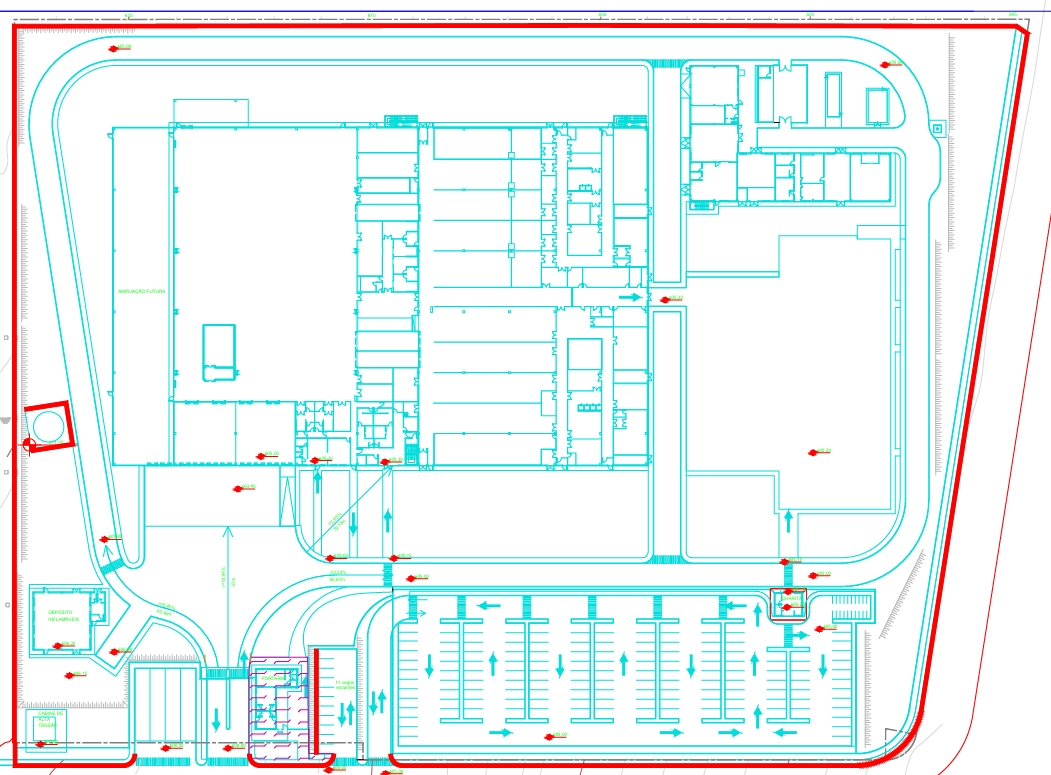
Centro Logístico e de Manutenção
Logística de cadeia fria para farmacêtica
- Maximizar a quantidade de vagas para a frota, garantindo eficiência operacional.
- Projetar fluxo único dentro do site, reduzindo manobras, congestionamentos e riscos operacionais.
- Implantar estação de tratamento de água, permitindo a reutilização máxima da água consumida na administração e na lavagem de caminhões.
- Prever galpão de 3.000 m² destinado à cadeia fria, atendendo às necessidades logísticas específicas, normativas e GMP.
- Executar terraplenagem utilizando apenas a terra disponível no próprio terreno, sem necessidade de importação ou descarte externo.
Responsável : Projeto e gerenciamento de obra.
Dados do empreendimento:
- Terreno: 18.566 m²
- Construção: 752,25 m² (1ª fase) + 3.000 m² (2ª fase)


Projetos – Terraplenagem e Centro Logístico
Foram desenvolvidos projetos de terraplenagem e planejamento de centro logístico, incluindo estudos detalhados para otimização de espaços, fluxos internos de veículos e segurança operacional. As análises abrangeram:
- Definição de níveis de terraplenagem para maximizar aproveitamento do terreno sem necessidade de importação ou descarte de terra.
- Organização de fluxos de circulação para reduzir manobras, congestionamentos e riscos dentro do pátio.
- Posicionamento estratégico de áreas operacionais e de estacionamento de frota para otimização logística.
- Adoção de soluções que garantem segurança de pessoas e veículos, integrando sinalização, barreiras físicas e layout seguro






